Skye at Holland: Your Best Chance to Enter District 10 at This Price
Today, let's take a deep dive into Skye at Holland, one of the most anticipated new launches in District 10. With 666 units developed by four of Singapore's biggest developers, this project is positioned to be a blockbuster. Let's break it all down.
Skye at Holland: An Introduction

Skye at Holland is a District 10 Core Central Region (CCR) development jointly developed by UOL, Singapore Land, Keng Leong, and CapitaLand. That's four major developers coming together for one project, which already tells you a lot about the confidence behind this site.
The development features 666 units across two main blocks, going all the way up to 40 storeys. Units range from 2 bedrooms to 5 bedrooms, with 4 and 5-bedroom units coming with private lifts. It is a 99-year leasehold project launching from 26th September 2025.
Location: Right in the Heart of Holland Village
If you know Holland Village, you know it's one of the most beloved neighbourhoods in Singapore. Skye at Holland sits right beside Holland Village MRT Station and the new One Holland Village shopping centre, which has been a great success since opening.
The location is prime CCR District 10, and yet it doesn't feel overly urban. Holland Village has always had that unique charm of being central yet retaining a very local, neighbourhood feel. You get your food centres, cafes, and boutique shops, all within walking distance. Botanic Gardens is just minutes away for those who love greenery, and Orchard Road is roughly a 10-minute drive.
In terms of daily driving experience, there are surprisingly few traffic jams in the Holland area. Access to major expressways is convenient, and getting around is smooth both day and night.
Maintenance Fees: Surprisingly Affordable
One thing that stood out is the maintenance fees. For a CCR District 10 development, the numbers are very reasonable.
- 2 and 3 bedrooms: $390 per month
- 4 bedrooms: $435 per month
- 5 bedrooms: $520 per month
These are actually cheaper than some District 25 developments, which is quite remarkable for a prime district project.
Facilities: Full Condo Living
Skye at Holland comes with full condo facilities. You get two main swimming pools between the two blocks, function rooms, a gym, kids' playroom, fitness areas, garden spaces, and games rooms spread across levels 2 and 3. The setup reminds me a bit of The Orie in terms of how the facilities are laid out.
The only thing missing is a tennis court. But as we always say, a tennis court does not equate to capital appreciation.
The School Question: Henry Park Primary
Now, this is something that has come up a lot. Skye at Holland is not within 1km of Henry Park Primary School. We checked, and it's frustratingly close, about 50 metres short.
But here's my honest take. I don't think this will significantly impact the project's performance. The demographic buying into Holland Village has always leaned towards lifestyle buyers, retirees looking to downsize, and PRs. From my experience marketing in this area, the 1km school radius is not the primary deciding factor for most buyers here.
The people buying into Holland Village are buying for the location, the amenities, and the lifestyle. School proximity is a nice bonus, but it's not the main driver in this particular district.
Pricing: Is It Attractive?
Skye at Holland is expected to launch from around $2,728 PSF onwards. Let me put that into context for you.
When you compare this to recent launches:
- ELTA (OCR) has already transacted at $2,800 PSF
- The Orie is at approximately $3,000 PSF
- Upper House is at $3,800 PSF
- River Green is at approximately $3,600 PSF
So a CCR District 10 project launching at $2,728 PSF is genuinely attractive. You're essentially getting a prime district address at a price that is competitive with, or even lower than, some RCR and OCR projects.
Of course, because the blocks go up to 40 storeys, expect a significant premium for higher floors. The starting price gives you a foot in the door, but the average PSF across the project is likely to settle higher.
The Freehold vs Leasehold Debate
Holland is traditionally known for freehold boutique developments. So naturally, people ask: should you buy a 99-year leasehold product in a freehold area?
Here's my view. Look at the freehold developments surrounding Skye at Holland. Most of them are very old, very small boutique projects of 30 to 40 units. Even though they are old and small, their quantum is already quite high.
If you want a freehold counterpart with comparable attributes to Skye, something newer and larger, you're looking at developments like Leedon Residences, where the minimum entry for a three-bedroom is $6 million. Compare that with a $2 million entry at Skye at Holland.
We have seen time and again that leasehold projects in traditionally freehold areas can perform very well. District 15 is a perfect example, where projects like Tembusu Grand and Grand Dunman have already delivered significant gains for buyers. Nava Grove in the Pine Grove area is another example. Buyers who entered early have already seen very healthy returns.
The younger generation of buyers is a lot more accepting of 99-year leasehold products because the entry price difference is simply too significant to ignore.
Comparing with Leedon Green: Nanyang Primary
For buyers who are torn between Skye at Holland and Leedon Green (which has Nanyang Primary School within 1km), here's my advice.
If you are specifically buying for school admission into Nanyang Primary, and your budget allows for it, then Leedon Green serves that purpose. But if you're buying as an investor or your priority is a lower entry price, Skye at Holland is the more compelling choice.
Leedon Green's three-bedroom units start from at least $3.X mil. At similar pricing, I would rather enter something brand new with more upside potential.
Floor Plan Highlights
The floor plans at Skye at Holland are post-harmonised, but the sizes are actually very reasonable. They haven't shrunk the units aggressively. In fact, compared to some pre-harmonised projects, the sizes here could even be bigger.
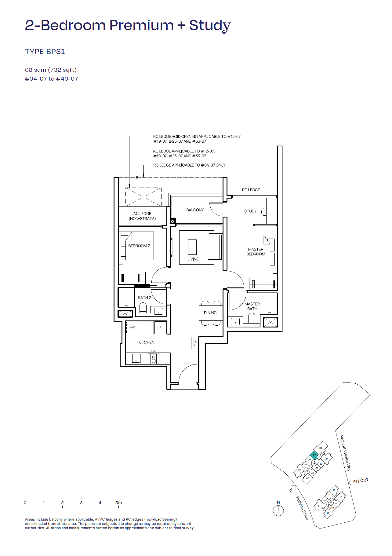
2 Bedroom + Study (732 sqft) - Type BPS1

This is an interesting layout. The study is placed within the master bedroom area, similar to what we've seen at Sora. Some buyers will love this, others may not. But when we visited the show flat, the unit felt spacious and well thought out.
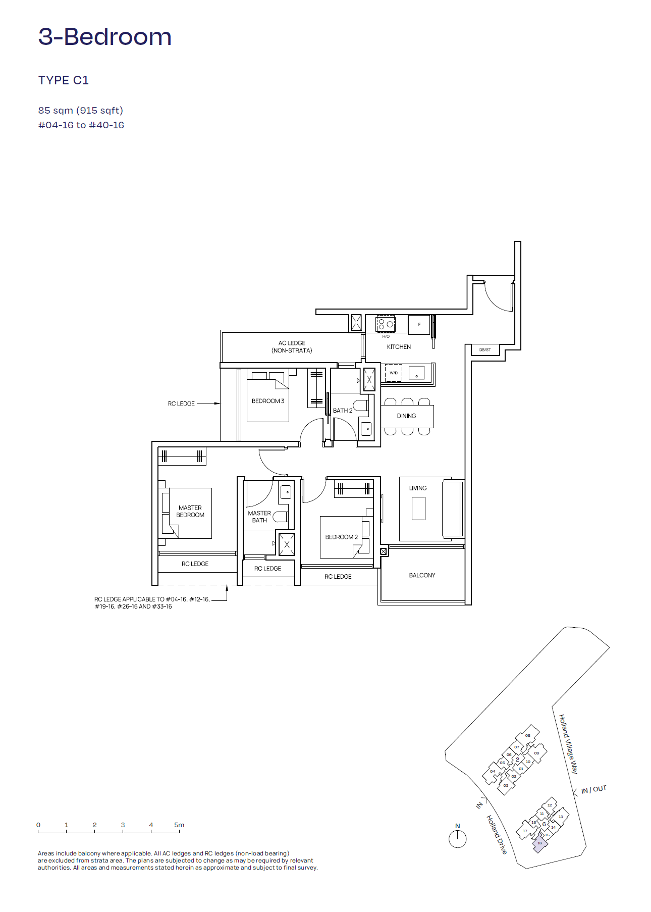
3 Bedroom (915 sqft) - Type C1

At 915 square feet, this is a proper three-bedroom layout. The design is traditional and functional. Nothing flashy, but nothing wrong with it either. For a post-harmonised project, 915 square feet for a three-bedroom is solid.
4 Bedroom with Private Lift (1,238 sqft) - Type D1

From four bedrooms onwards, you get a private lift. This adds a significant premium feel to the larger units and is a great touch for families who value privacy.
5 Bedroom Suite with Private Lift (1,765 sqft) - Type E1

The five-bedroom suite is the crown jewel of the development. At 1,765 square feet with a private lift, starting from $5,853,000, this is for buyers who want spacious CCR living with all the conveniences of Holland Village at their doorstep.
Own Stay or Investment?
My verdict: Investment.
Here's why. If I compare the recent new launch market, the resale market, and what's coming up from the upcoming GLS, the price that Skye at Holland is asking for could well be the future OCR pricing. In fact, in some cases it already is.
From an investment metrics standpoint, it checks nearly every box. CCR location, strong developer consortium, right beside MRT, reasonable entry price, and healthy demand in the Holland area.
Why not own stay for me personally? It's simply a matter of preference. I prefer to be closer to the main road where driving is a lot easier, and I personally prefer a project with a larger land size where I can walk around within the development itself. But that's just me.
For own stay buyers, if you value the Holland Village lifestyle, the convenience of being next to MRT and shopping, and you want to be in a central location without the premium of Orchard Road, then Skye at Holland is absolutely worth considering.
Final Thoughts
Skye at Holland is what I'd call a very safe project. All the fundamentals that make a good investment are present. Near MRT, CCR address, reasonable pricing, strong developers, and a location that everyone knows and loves.
It may not be the most exciting or glamorous project on paper, but it's the kind of project that we know will do well. Sometimes, the best investments are the ones that simply get everything right without trying to be flashy.
If you're interested in viewing Skye at Holland or need advice on whether it fits your property portfolio, don't hesitate to reach out. I'm happy to walk you through the numbers and help you make the right decision.

