Quick Facts

District
D23
Tenure
99 Years
TOP Date
2027 Jun
Number of Units
408
Attachments

Floorplan Overview

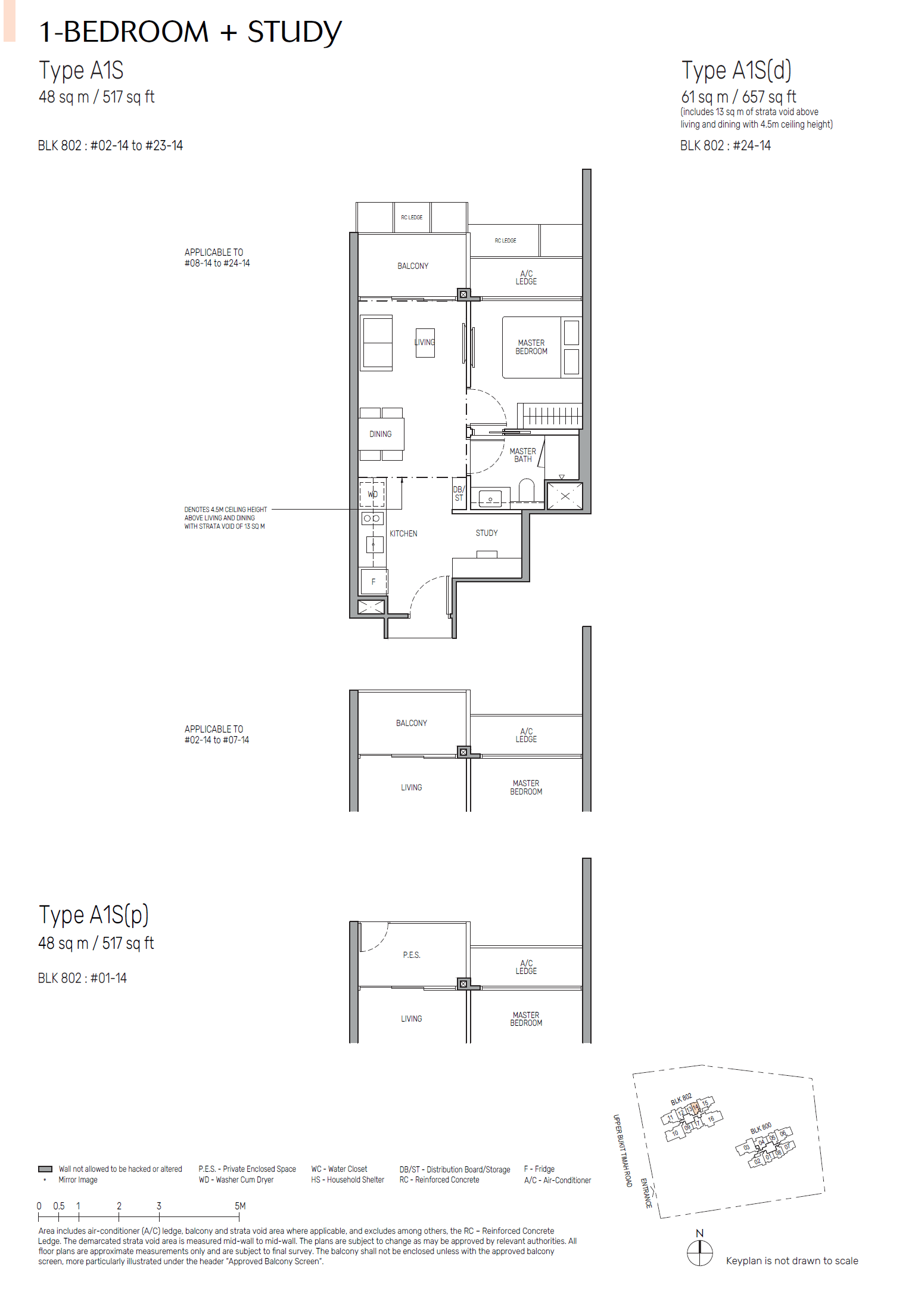
Bedroom Type# Units Left
1 BR + Study0
2 BR3
2 BR + Study1
3 BR0
3 BR Premium0
3 BR Premium + Study0
4 BR19
5 BR11

Location Map of
The Myst

Personalized Property Alerts

Stay ahead in your property search with our exclusive alerts. Be the very first to know about the latest listings that match your preferences. From cozy apartments to luxurious homes, we ensure you receive real-time updates tailored just for you.