River Modern: The Only River-Facing Launch in River Valley, Still Worth Buying?
Today, let's take a deep dive into River Modern, the latest new launch in the River Valley area by GuocoLand. With so many new launches in this neighbourhood over the past two years, the question on everyone's mind is simple: is it still safe to enter River Valley? Let's find out.
River Modern: An Introduction

River Modern is a District 9 Core Central Region (CCR) development by GuocoLand, featuring 455 units across two main blocks on a sizeable site of 126,326 square feet. Units range from 2 bedrooms all the way to 4 bedrooms, with approximately 70% of units enjoying views of the Singapore River.
GuocoLand is no stranger to delivering quality projects. They are the same developers behind Lentor Modern, Lentor Mansion, and the well-known Martin Modern. Every time buyers hear about GuocoLand, it has always been a strong selling point, and their sales track record speaks for itself.
Location: What Makes River Modern Stand Out
If you look at a map of the River Valley area, everything north of the Singapore River falls under District 9 CCR, while the south side belongs to District 3, Rest of Central Region (RCR). This distinction matters a lot.
River Modern sits firmly in District 9 CCR, and that's one of its most distinct characteristics. Compare this to recent launches such as Promenade Peak and Zyon Grand, which are just one road away but actually belong to District 3 RCR. In terms of how buyers value the land, this makes a very big difference.
Three Key Components
There are three very important amenities in close proximity to River Modern:
- Great World MRT Station with direct sheltered integration
- Great World Mall for everyday shopping and dining
- River Valley Primary School, one of the popular primary schools in the area
All three are connected via fully sheltered walkways. That level of convenience is hard to beat.
On top of that, River Modern is located right beside Kim Seng Park, giving residents access to greenery and nature even while living in the heart of Singapore. It's also just a 5-minute drive to Orchard Road.
Is It Still Safe to Enter River Valley?
With all the past launches in the area, this is probably the most common question we get from buyers. Let me share my honest take.
When I look at the past performance of nearby projects, River Green and Zyon Grand are approximately 92% and 87% sold respectively. Their two-bedroom units? Completely sold out.
Even for compact three-bedroom units in the area, they are all sold out. This tells us there is strong demand and, in fact, not enough supply in River Valley.
So when River Modern comes along offering quality floor plans plus Singapore River-facing views, there is every reason for the market to respond positively.
Resale Comparison: What Can You Get at the Same Price?
This is something I always do before recommending a project. If you're looking at a three-bedroom at River Modern, say the 1,098 square feet unit at around the $3.2 to $3.5 million range, what else can you get in the area?
After scrolling through Property Guru and checking caveat records, I realised that at the same quantum, you simply cannot get what River Modern is offering.
Your options would be smaller boutique developments with bay windows. Or if you want something newer, you could look at Martin Modern (also by GuocoLand). For something with similar river-facing attributes, there's Riviere. But when you look closely at Riviere's three-bedroom layout at about 1,141 square feet, it's not as comprehensive for a family.
The key differences with Riviere at the same quantum:
- Narrower wall-to-wall distance with a portrait layout instead of River Modern's landscape orientation
- No full-size kitchen, no yard, no household shelter or flexi area
- No third bathroom
When you compare all of this, River Modern really stands out in terms of what you're getting for your money.
Pricing: Is It Justifiable?
River Modern's indicative pricing starts from $2,800 PSF, though realistically the average is expected to land closer to $3,000 to $3,200 PSF, especially for premium river-facing units.
Even at $3,200 PSF, I am of the view that it is a very reasonable price. Here's why.
If we look at River Green in the same District 9, it has already hit $3,006 PSF. Meanwhile, Zyon Grand and Promenade Peak in District 3 are still capped at around $3,001 PSF. That price gap between District 9 and District 3 shows the value of being on the CCR side of the river.
For further context, the Newton GLS land bid came in at $1,820 PSF per plot ratio. The Tanjong Rhu GLS was bidded at almost the same price as River Modern at $1,455 PSF per plot ratio. And Vela Bay, likely one of the blockbuster launches this year, was at $1,388 PSF per plot ratio.
River Modern's land bid at $1,004 PSF per plot ratio actually compares very favourably against all of these.
What You're Betting On
One thing that draws me strongly to River Modern is this: what you are buying into is not a government plan that has yet to materialise. For some of the other GLS sites, you are paying a premium based on trust that whatever the government has planned will come to fruition.
With River Modern, the track record is already there. The resale developments in River Valley have proven they can deliver good profits. The infrastructure, amenities, schools, and MRT are all already up and running. You are buying into something proven.
Floor Plan Highlights
The video discussion focused heavily on the three-bedroom plus layouts, which are the sweet spot for families and investors looking at the $3.2 to $3.5 million range.
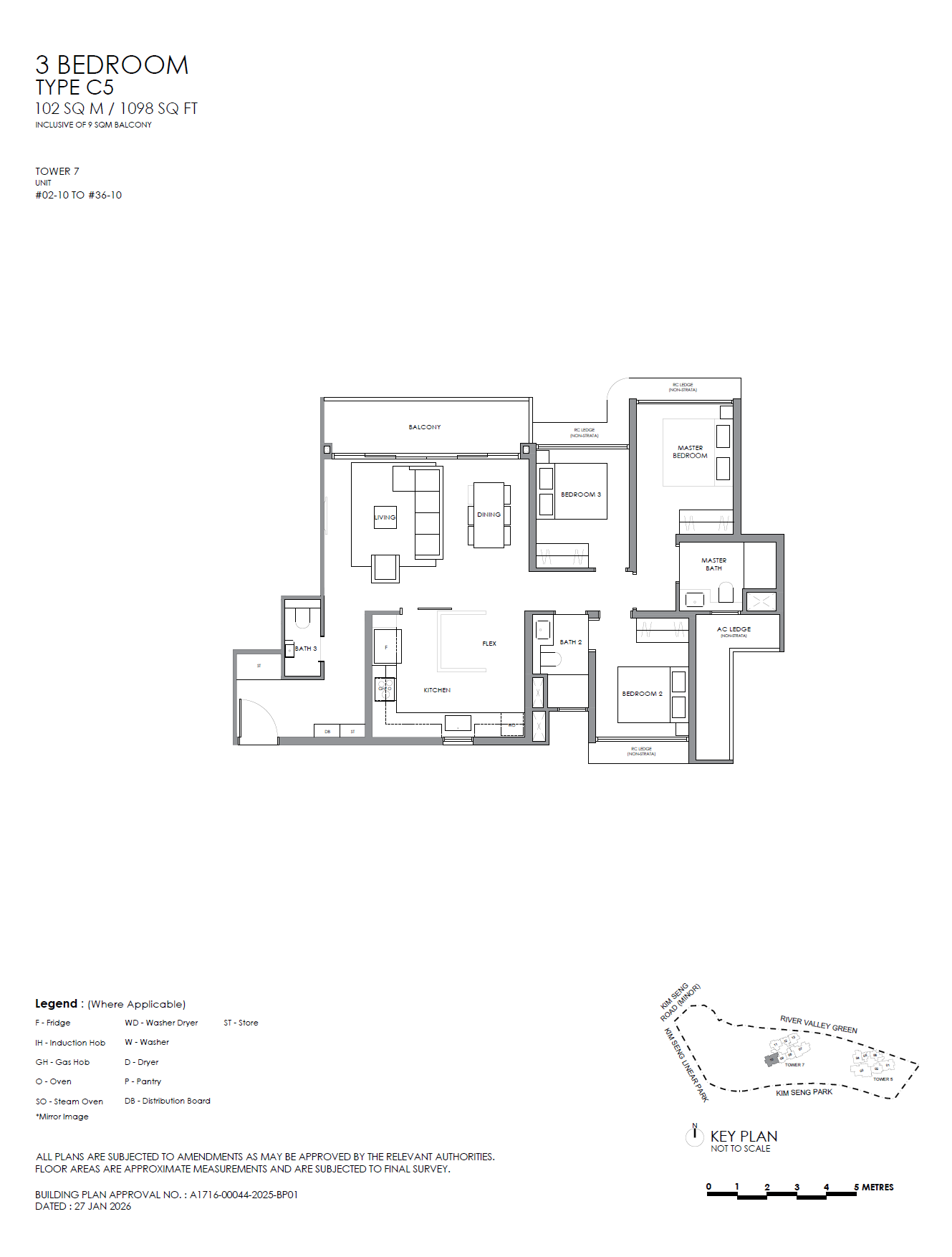
3 Bedroom Plus (1,098 sqft) - Type C5

This is a standout layout. At 1,098 square feet, you get a landscape-oriented living and dining area with generous wall-to-wall distance. The kitchen is a full-size kitchen complete with a yard and household shelter, making it practical for families with a helper. Three bathrooms round out a very comprehensive unit.
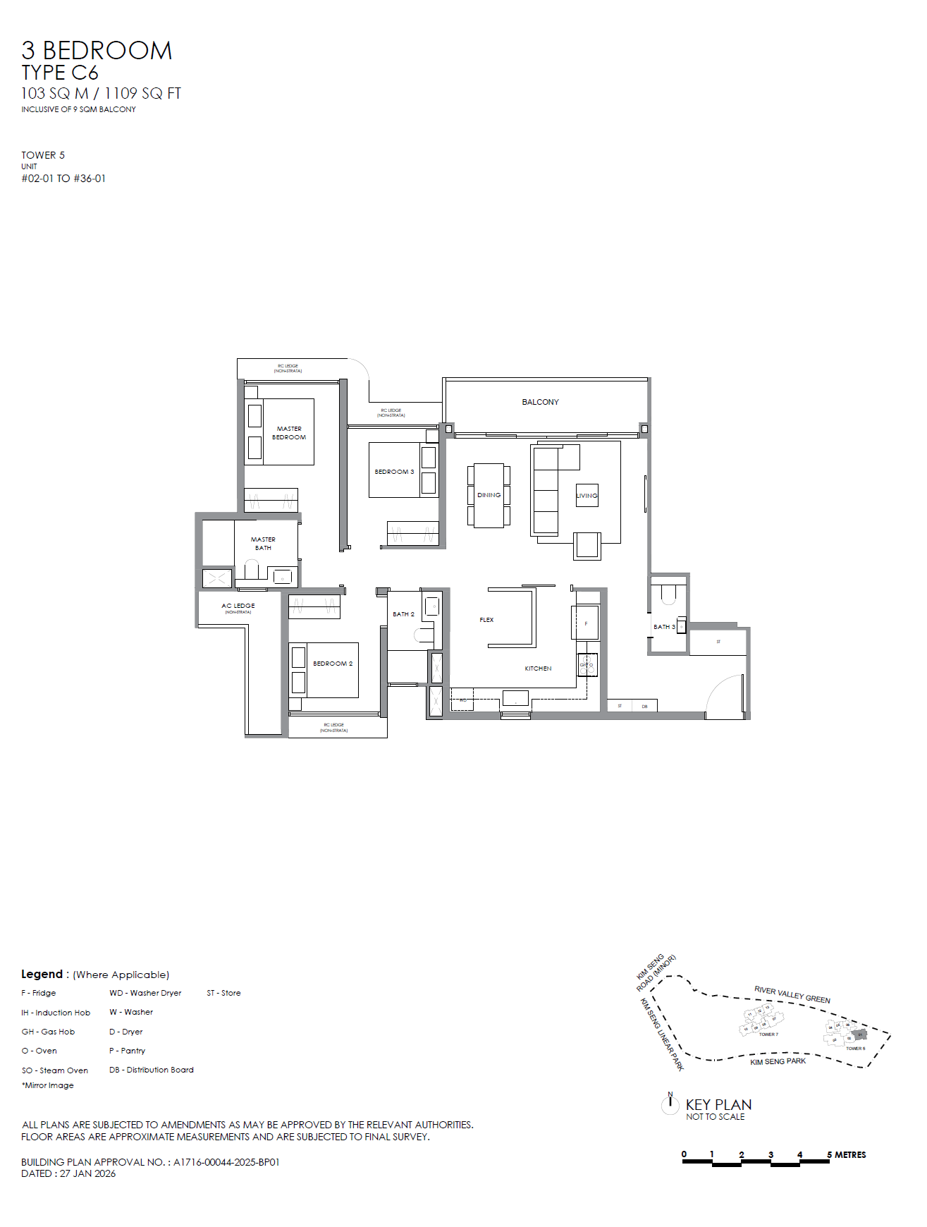
3 Bedroom Plus (1,109 sqft) - Type C6

Similar to the C5 but with a slightly different configuration at 1,109 square feet. Both three-bedroom plus layouts offer what many resale developments in the area simply cannot match at the same price point.
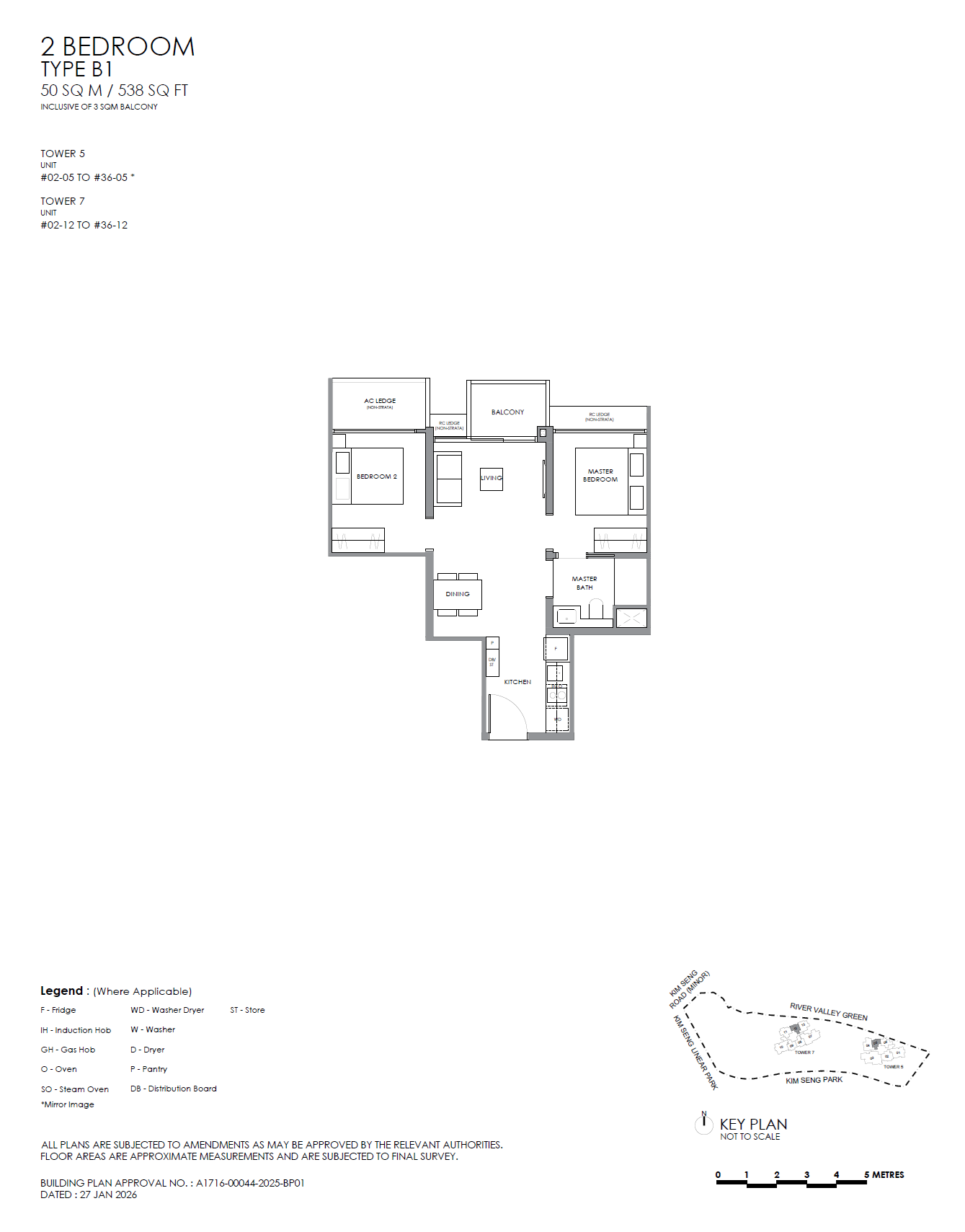
2 Bedroom (538 sqft) - Type B1

For investors, the two-bedroom is a proven performer in River Valley. Two-bedroom units in nearby projects like River Green and Zyon Grand are completely sold out, showing how strong the demand is. Starting from $1,809,000, this is a compact and efficient layout.
Own Stay or Investment?
My verdict: both.
For investment, River Valley two-bedroom units have always been a great choice. The demand is clearly there, with competing projects almost fully sold. That said, I would put a caveat that if you're looking for a short-term flip, River Modern may not be it. But if you're looking at a medium to long-term hold of six to eight years, the capital appreciation potential is very strong.
For own stay, it's hard to find another development in Singapore that gives you proximity to town (5 minutes to Orchard), direct MRT access, a reputable primary school, and a shopping mall, all within sheltered walking distance. Add in the Singapore River views and the greenery of Kim Seng Park, and it ticks a lot of boxes for families.
River Modern is not just a safe entry into River Valley. It's a compelling one.
Final Thoughts
River Modern stands out as the only Singapore River-facing new launch in the River Valley area. Its CCR District 9 address, fully sheltered connectivity to Great World MRT, Great World Mall, and River Valley Primary School, combined with GuocoLand's strong track record, makes it a development worth serious consideration.
Whether you're a family looking for a livable home in the heart of Singapore, or an investor seeking a safe entry into a proven neighbourhood, River Modern deserves a spot on your shortlist.
If you'd like a more personalised analysis on whether River Modern is the right fit for your needs, don't hesitate to reach out. I'd love to help you explore the possibilities together!

